Villa singola in vendita

Brindisi, Contrada Mascava - Posticeddu
€ 33.000
Prezzo aggiornato
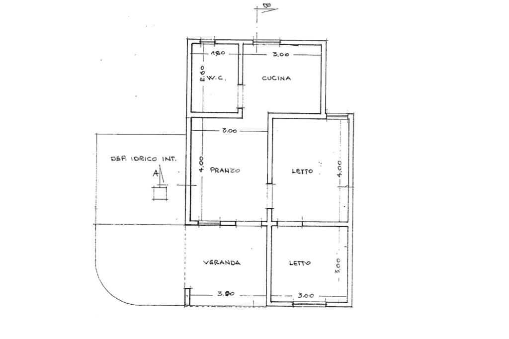
3 locali 3 locali
60 Mq 60 Mq
1 bagno 1 bagno

Villa singola in vendita

Brindisi, Contrada Mascava - Posticeddu

Descrizione annuncio

SERRANOVA CONTRADA MASCAVA

Nell'icona 360° troverete il servizio Matterport per prendere le misure e camminare in casa. Cercate i tondini colorati dove troverete contenuti e dettagli.

AL CENTRO

La villetta che Vi proponiamo oggi si rivolge ad una Committenza che desidera fortemente dare un'impronta indelebile , personale e identitaria alla propria abitazione . Solitamente il Profilo acquirente non accetta compromessi , deve decidere tutto , colori , sfumature , arredi e divisione degli spazi esterni . Ad oggi abbiamo convinto i Proprietari a fornirVi un prezzo imbattibile soprattutto per la Contrada rinomata e particolarmente apprezzata dagli stranieri che possono finalmente realizzare un comodo pied-à-terre. Siamo sicuri che una volta definito lo schema distributivo interno , l'impegno più appassionante sarà scegliere la giusta distribuzione delle aree esterne ; quale sarà la porzione agricola ? E quale la zona Solarium e piscina ? I parcheggi per gli ospiti ? Persino gli amici a 4 zampe ( o a due ) possono scegliere il loro spazio di azione . Serve passione , entusiamo e sinergie professionali per dare vita ad una soluzione abitativa da copertina e il risultato finale sara' una villetta nel cuore della Puglia , a 8 km da Torre Guaceto , al centro del triangolo pugliese BRINDISI - BARI - TARANTO e a soli 15 km dall'Aeroporto.

Il terreno che circonda la villa è di 4375 MQ.

L'immobile è anche su Facebook, 'Agenzia Tecnocasa Alto Salento Commenda Brindisi' e clicca MI PIACE oppure se vuoi contenuti e informazioni esclusive prima di tutti ABBONATI alla nostra pagina Facebook... Per vedere i video delle nostre proposte immobiliari, cerca su youtube il nostro canale 'Tecnocasa Alto Salento Commenda Brindisi' ed iscriviti

Mostra tutto

Nelle vicinanze

Trasporto pubblico Trasporto pubblico
Trasporto pubblico
430 m
Mostra tutto

Caratteristiche

Rif.:
61100033
Piano:
Terra di 1
Totale piani:
1
Posti auto:
10
Terrazzi:
1
Camere da letto:
1
Mostra tutto
Prezzo Prezzo
€ 33.000
Rata mutuo Rata mutuo
€ 156 / mese
Spese annue Spese annue
€ 0
Proponi il tuo prezzoProponi il tuo prezzo

Classe Energetica

G
G
G
G
G
G
G
G
G
Anno di costruzione:
1980
Riscaldamento:
Assente

Prezzo ridotto di €1 (16%%)

Ti interessa visionare l'immobile?

Fissa un appuntamento  Fissa un appuntamento

Richiedi informazioni

Clicca su Leggi per aprire l'informativa
* Questi campi sono obbligatori

Calcola il tuo mutuo

Semplice e senza impegno
Anticipo

( % )
Mutuo

( % )

pochi semplici passi

inserisci i tuoi dati
Questionario completato
Grazie per aver richiesto un appuntamento senza impegno con un nostro Consulente del Credito e Assicurativo.

Hai inserito correttamente tutti i dati necessari e a breve riceverai una e-mail con un link da convalidare per inviare i tuoi dati.
Affiliato
Studio Alto Salento Commenda Srl
Via Appia , 278 72100 Brindisi (BR)

Il nostro staff


  • Stefano Ciraci
    Collaboratore

  • Federico Di Presa
    Affiliato

  • Teomira Macaolo
    Coordinatrice

  • Ilaria Mariutti
    Coordinatrice

  • Claudio Nannavecchia
    Collaboratore
Via Appia , 278 72100 Brindisi (BR)
Zona: Commenda-Aldo Moro
Mostra su mappa
Orari: dalle ore 9,00 alle ore 20,00
Affiliato
Studio Alto Salento Commenda Srl
Via Appia , 278 72100 Brindisi (BR)

2025 Tecnocasa Franchising S.p.A. - P. IVA 08365160152 - Via Monte Bianco 60/A 20089 Rozzano (MI). Ogni agenzia ha un proprio titolare ed è autonoma. Privacy policy | Policy utilizzo | Cookie policy